
La popular y veterana emisora de radio "Radio faro del Noroeste" sigue su proyección hacia una mayor ampliación de su cobertura.
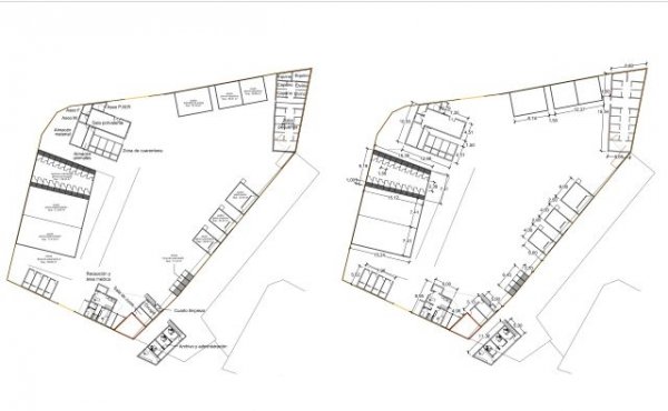
El Ayuntamiento de Gáldar ha sacado a licitación la primera fase de la construcción del Centro de Estancia Temporal de Animales (CETA) El Sobradillo, un proyecto que garantizará la protección de los animales domésticos y de granja en el municipio. La obra se sitúa en una parcela de 3.190 metros cuadrados, lo que permitirá cumplir con unas buenas condiciones higiénico-sanitarias y adecuadas a las necesidades de los animales que albergará
Con un presupuesto de 469.806,95 euros, el proyecto cuenta con una subvención de 350.000 euros del Cabildo de Gran Canaria, mientras que el resto de la inversión procede de fondos propios del Ayuntamiento
La construcción contará con dos zonas: una de recepción, administración y sanitaria; y otra de estancia de animales según su especie además de un almacén. Así, habrá una zona para redil equino, caprino y ovino, perros pequeños, zona de esparcimiento, animales de granja, entre otros. El espacio, que antes correspondía a una vaquería, se convertirá de esta manera en un centro pionero y moderno en cuanto a su planteamiento y distribución, y con él se hará realidad una de las prioridades del grupo de gobierno municipal.
Hace tan solo unos meses este proyecto pionero y una de las prioridades del grupo de gobierno municipal recibió el visto bueno por parte del Gobierno de Canarias ya que el suelo donde se va a ejecutar se encuentra en la franja de servidumbre de protección del dominio público marítimo terrestre.
El alcalde de la ciudad, Teodoro Sosa, declara que con este proyecto “Gáldar dará un gran salto en lo que se refiere a la atención de animales, un aspecto fundamental que mide el nivel de desarrollo de una sociedad moderna”, y añade que “de nuevo nuestro municipio no mira para otro lado ante lo que es un problema recurrente en nuestra isla y buscamos soluciones”.
El concejal de Bienestar Animal del Ayuntamiento galdense, Rafael Pérez, mostró su satisfacción por el desarrollo del proyecto, que avanza con paso firme, y que permitirá al municipio dotar de un espacio adecuado y con instalaciones modernas y amplias para el cuidado apropiado de los animales, cumpliendo además la premisa de sacrificio cero que se ha marcado este área.

La popular y veterana emisora de radio "Radio faro del Noroeste" sigue su proyección hacia una mayor ampliación de su cobertura.